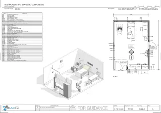
Echocardiography - Trans-oesophageal

ECHO

Revision: 
3.0
Date published: 
01/03/2016

Room for diagnostic echocardiography procedures including trans-oesophageal echocardiography. Echocardiography procedures may be performed under local anaesthesia. This room should be located close to patient toilet and change rooms.
 

This Standard Component has been redocumented. During the process, the content has undergone a quality assurance process. The overall changes are minor in nature and do not represent a significant revision.

Room Data Sheet

Downloads
Room Data Sheet
Revision: 2.0
01/03/2016
PDF

Room Layout Sheet

Downloads
Room Layout Sheet
Revision: 3.0
01/03/2016
PDF

Project Resources

 

Archive

Find past versions of documents here

Downloads
Room Data Sheet
Revision: 3.0
20/03/2017
PDF
Room Layout Sheet
Revision: 4.0
20/03/2017
pdf
Room Data Sheet
Revision: 2.0
01/03/2016
PDF
Room Layout Sheet
Revision: 3.0
01/03/2016
pdf
Room Data Sheet
Revision: 1.0
08/06/2007
PDF
Room Layout Sheet
Revision: 2.0
08/06/2007
pdf

Retired Standard Components

Retired Standard Components

Webpage