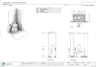
Bay - Water Dispenser

BWD-1

Revision: 
1.0
Date published: 
01/03/2016

A recessed bay off a corridor, a public waiting area or associated with a main entry / lobby area for a drinking water dispenser. Unit selection will depend on infection control policies and the availability of vending machines/retail in close proximity.

 

This is a new Standard Component.

Room Data Sheet

Downloads
Room Data Sheet
Revision: 2.0
01/03/2016
PDF

Room Layout Sheet

Downloads
Room Layout Sheet
Revision: 1.0
01/03/2016
PDF

Project Resources

 

Archive

Find past versions of documents here

Downloads
Room Data Sheet
Revision: 3.0
20/03/2017
PDF
Room Layout Sheet
Revision: 2.0
20/03/2017
pdf
Room Data Sheet
Revision: 2.0
01/03/2016
PDF
Room Layout Sheet
Revision: 1.0
01/03/2016
pdf

Retired Standard Components

Retired Standard Components

Webpage